 
  
 /
 
 家を買うとき、借りるとき、誰もが一度は目にする「間取図」。物件のスペックを一枚の図面に集約した間取図は、部屋の使い勝手や暮らしやすさを推測する大きな判断材料となるわけだが、世の中には思わず首をかしげたくなる「ヘンな間取図」も存在している模様。
よくよく見ると、なにかがおかしい…。でも、なぜか愛おしい。そんな愛すべき間取図の世界について、『間取図大好き!』(扶桑社)編著者の森岡友樹氏、大山顕氏、大塚幸代氏にお話を伺った。
思わず目を疑う、ヘンテコな間取図ばかりを集めた『間取図大好き!』(扶桑社)は、2007年にスタートした「間取図ナイト」を書籍化したもの。2013年3月現在までに全国各地で23回の公演を行い、いずれも満員御礼という人気イベントだ。筆者の周りにも「間取図好き」はいるが、それが有料のイベントとして成立してしまうほど裾野が広く、熱いものとは知らなかった。聞けばmixi「間取図大好き!」コミュニティには13万人ものメンバーが集まっているという。
「世の中に、じっくり見ても面白くない間取図なんてものは存在しない!」とは「間取図ナイト」主催者の森岡友樹氏。ということで、今回は同書に収録されている間取図の中から、編著者の3人が特にグっときたオススメの間取りを選んでもらった。
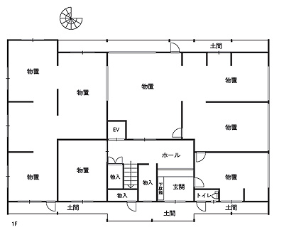
■森岡友樹氏推薦 「1階が全体的に物置」な間取図

2階は至って普通なのに… (画像提供:扶桑社『間取図大好き!』編集部)

1階は全体的に物置! (画像提供:扶桑社『間取図大好き!』編集部)
<森岡さんコメント>■大塚幸代氏推薦 お風呂の傍に「こ風呂」がある間取図

大きなお風呂の横に、ナゾの「こ風呂」がある (画像提供:扶桑社『間取図大好き!』編集部)
<大塚さんコメント>■大山顕氏推薦 住み人の生活感がにじむ「マイ間取図」

「間取図ナイト」来場者が描いた「自分の家の間取図」。家具の描き入れ具合など、不動産屋の間取図にはない楽しさが凝縮 (画像提供:扶桑社『間取図大好き!』編集部)
<大山さんコメント>このように、同じ間取図好きでもその嗜好はさまざま。ただ、全員に共通しているのは間取図の向こうに透けて見える生活を想像し、その人となりに思いを巡らせている点だ。
「力のある間取図には『実際にこの物件を見に行ってみたい』と思わせる何かがある。間取図の向こうに住んでいた人を想像し、何か事情があってこうなったのか? と思いを馳せるのが楽しいのです」(森岡氏)
同書にはほかにも、「玄関が長すぎる間取図」「玄関にお風呂がある間取図」「1つのトイレに便器が3個ある間取図」「バルコニーにトイレがある間取図」などなど、そこらの不動産屋ではあまりお目にかかれない「マトモじゃない物件」のオンパレード。それらに対し、編著者の3人が愛あるツッコミを入れる内容となっている。
噛めば噛むほど味わい深い間取図の世界。アナタも一枚の間取図の中に潜む「物語」に思いを馳せてみては?

『間取り図大好き!』(扶桑社)
●『間取り図大好き!』(扶桑社)この記事のライター
SUUMO
176
『SUUMOジャーナル』は、魅力的な街、進化する住宅、多様化する暮らし方、生活の創意工夫、ほしい暮らしを手に入れた人々の話、それらを実現するためのノウハウ・お金の最新事情など。住まいと暮らしの“いま”と“これから= 未来にある普通のもの”の情報をぎっしり詰め込んで、皆さんにひとつでも多くの、選択肢をお伝えしたいと思っています。
ライフスタイルの人気ランキング
新着
公式アカウント